0734-8497580
欢迎进入南岳电控(衡阳)工业技术股份有限公司
供应链
网站地图
中
|
EN
中国燃油喷射行业领先者
首页
产品系列
柴油燃油喷射系统
汽油直喷系统
尾气后处理系统
电子控制单元
出口产品系列
甲醇喷射系统
液压系统
客户服务
服务保障
服务知识
服务网点
资料下载
主要客户
新闻资讯
企业新闻
关于我们
企业简介
企业文化
人才招聘
联系我们
专利资质
荣誉资质
厂房厂貌
职工风采
检测(实验)设备
公告
普通公告
招标公告
产品商城
公司公告
Company notice
普通公告
招标公告
联系我们
南岳电控(衡阳)工业技术股份有限公司
电 话:+86 0734-8497580
传 真:+86 0734-8401315
邮 箱: nyc@nydk.cn
地 址:湖南省衡阳市白沙洲
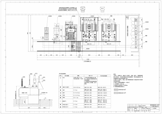
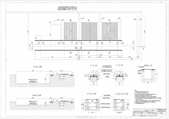
热处理车间多用炉设备基础及配套工程公开比价实施公告
字号:
小
中
大
时间:2026.03.13
阅读人气:
上一篇:没有了
下一篇:
关于数控成型磨大修项目的公开招标公告